|
Item |
PartNo |
Description |
Qty |
Options |
Ref |
Alt |
|
? |
PB8167 |
CAPSCREW - 1/2" - 13NC X 6 1/2" |
|
|
|
|
|
? |
VE4519 |
FLAT WASHER - 1/2" |
|
|
|
|
|
? |
GE0044 |
FLAT WASHER |
|
|
|
|
|
? |
VE4699 |
LOCKWASHER - 1/2" |
|
|
|
|
|
? |
VC1390 |
LOCKWASHER - 5/8" |
|
|
|
|
|
? |
VE4698 |
NUT - 1/2" - 13NC |
|
|
|
|
|
? |
GE0045 |
NUT - 5/8" - 11NC |
|
|
|
|
|
? |
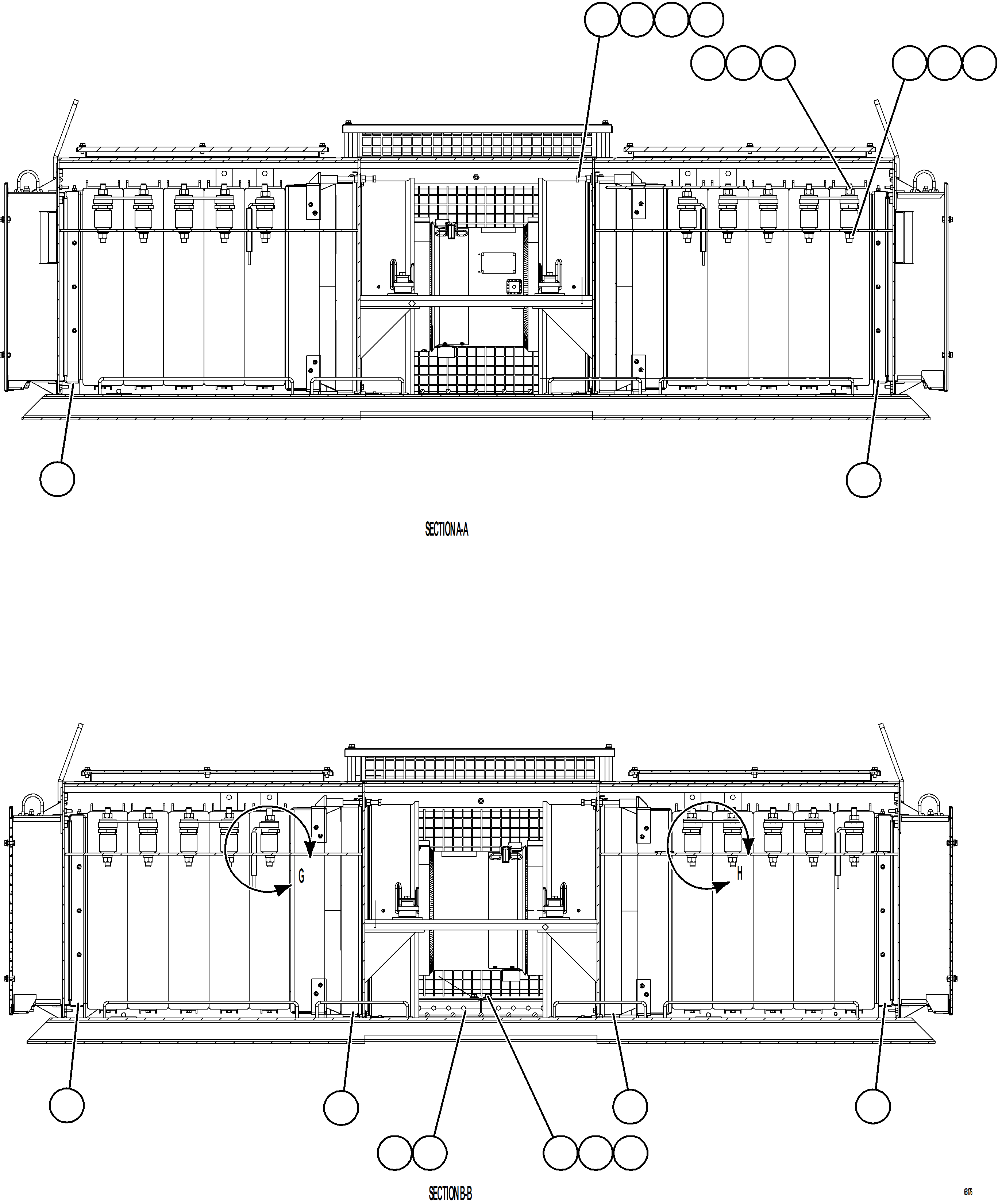
58B-06-01950 |
FRAME ASSEMBLY |
4 |
|
|
|
|
? |
XA4160 |
DIFFUSER ASSEMBLY |
2 |
|
|
|
|
? |
GE1815 |
DIFFUSER ASSEMBLY |
2 |
|
|
|
|
? |
GE0040 |
CAPSCREW - 3/8" - 16NC X 3 1/2" |
|
|
|
|
|
? |
58F-98-01350 |
CABLE CLEAT |
4 |
|
|
|
|
? |
VE4687 |
LOCKWASHER - 3/8" |
|
|
|
|
|
? |
GE0035 |
CLAMP, CABLE |
4 |
|
|
|
|
? |
VE4515 |
FLAT WASHER - 3/8" |
|
|
|
|
|
? |
58F-06-01570 |
FLAT WASHER - 5/8" |
|
|
|
|
|
? |
|
(SEE FOLLOWING PAGES FOR DETAIL VIEWS.) |
|
|
|
|