Komatsu Parts Catalogs















Item PartNo Description Qty Options Ref Alt
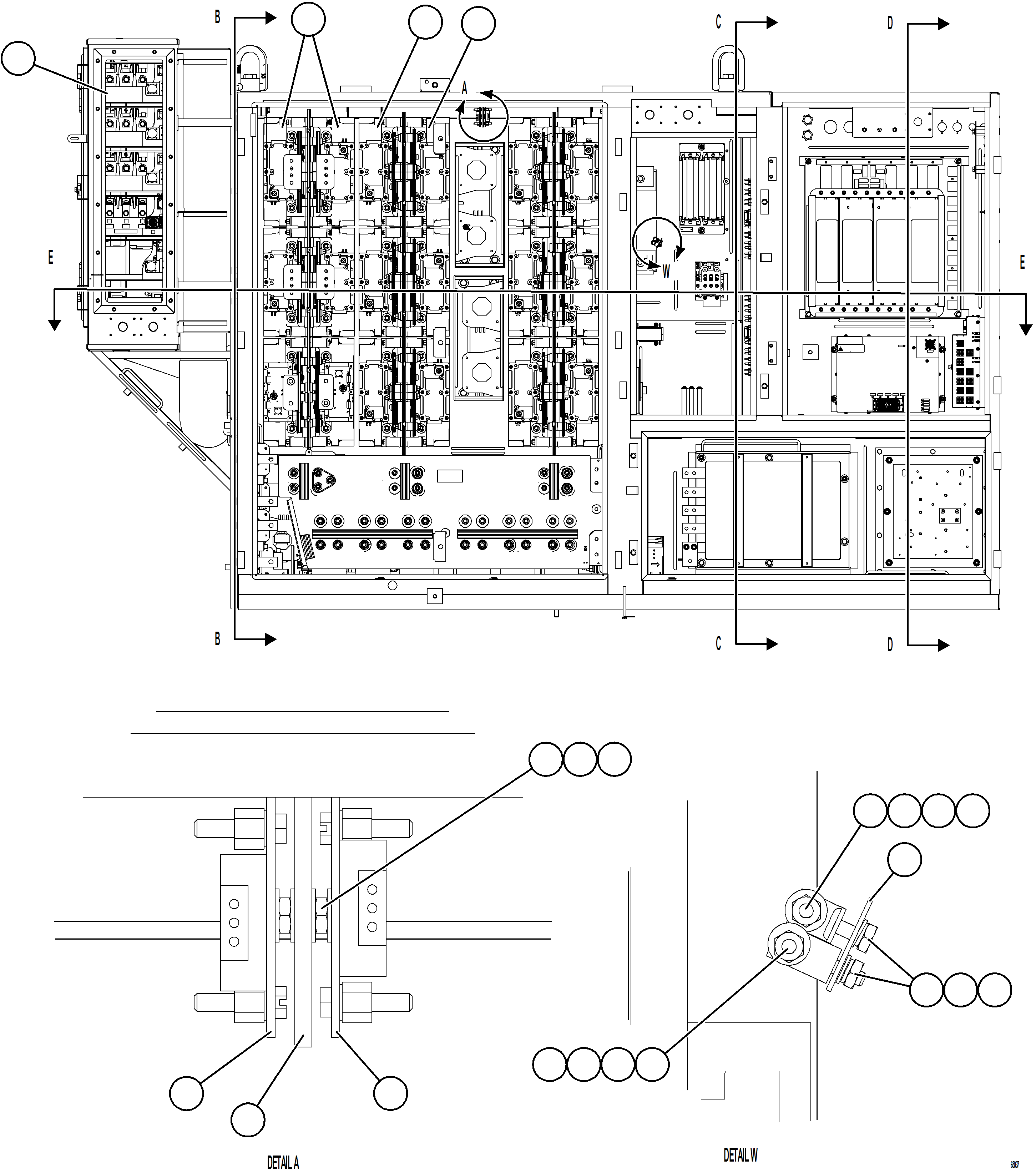
? 58D-98-00920 SEAL, TRIM 1
? 58F-43-01210 MODULE 4
? 58F-43-01010 INVERTER, IGBT (+) 6
? 58F-43-01110 INVERTER, IGBT (-) 6
? 58F-43-00880 SUPPORT 1
? 58B-43-01200 RESISTOR BOARD 2
? GE1388 STUD - #10 - 32NC X 1 3/8" 2
? VE4655 FLAT WASHER - #10 14
? VE4602 NUT - #10 - 32NF 10
? VE4601 LOCKWASHER - #10 4
? VE4600 FLAT WASHER - #10 4
? GE0219 SUPPORT, MODULE 1
? GE0220 SUPPORT, MODULE 1
? BF4452 MODULE, SUPPRESSION 1

Dump Trucks Komatsu / AFE NEW / AFE78-AY 930E-5 S/N A40170  THEISS(afe78-ay) / CONTROL CABINET    3/13(258 : 65037)
?
?
?
?
?
?
?
?
?
?
?
?
?
?
?
?
?
?
?
?
?
?