Komatsu Parts Catalogs




















Item PartNo Description Qty Options Ref Alt
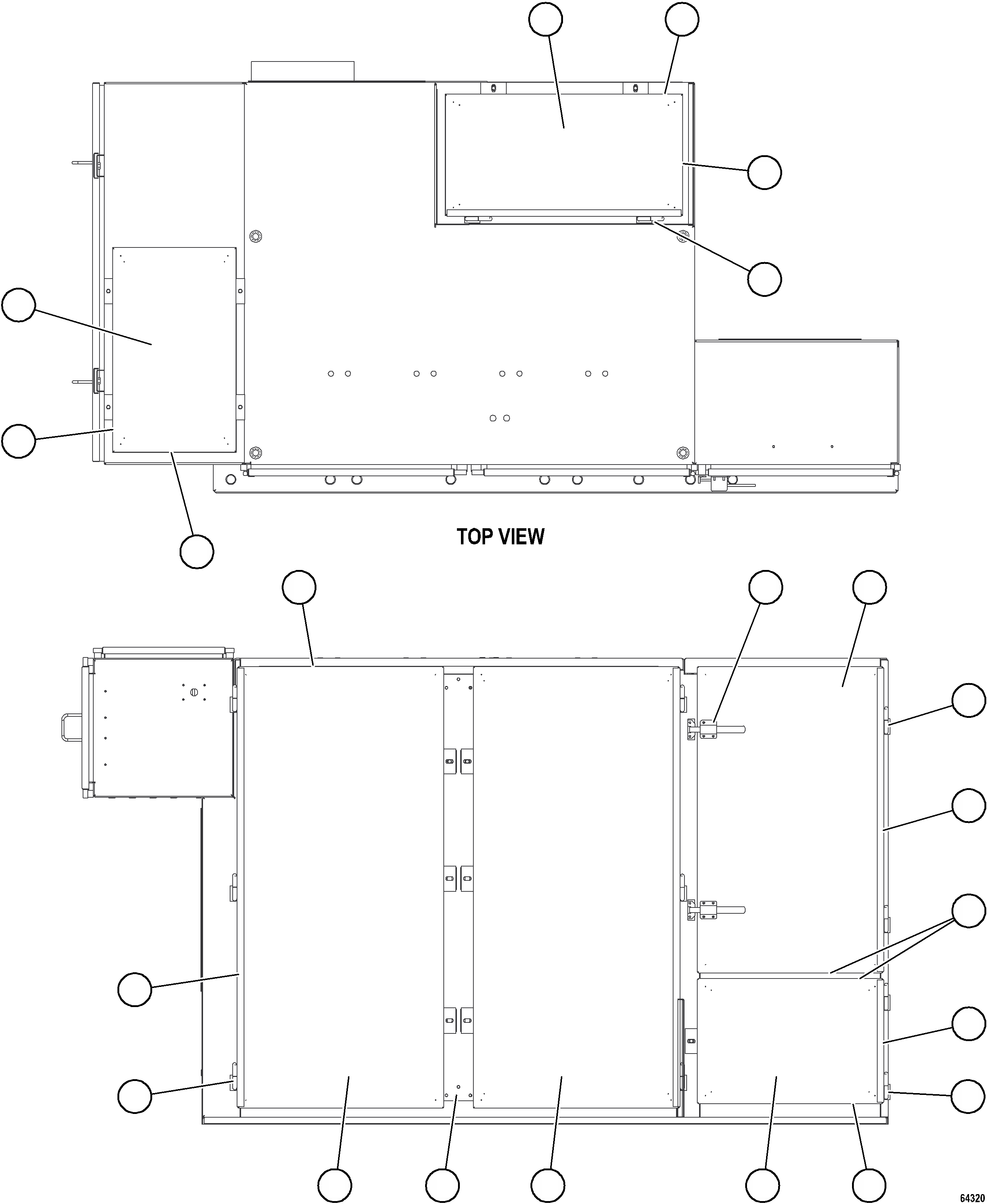
? XA5289 DOOR POST 1
? XA5294 DOOR ASSEMBLY 1
? XA5295 DOOR ASSEMBLY 1
? GE1784 GASKET 4
? GE1785 GASKET (1) 4
? GE1771 HINGE 12
? 58B-43-00441 DOOR ASSEMBLY, RH 1
? 58B-30-01020 GASKET 1
? 58B-30-01010 GASKET 3
? 58B-43-00050 GASKET (1) 2
? 58B-43-00040 DOOR ASSEMBLY 1
? GE1242 LATCH & KEEPER 2
? 58B-43-00430 DOOR ASSEMBLY, LH 1
? GE1779 GASKET 2
? GE1780 GASKET (1) 2
? 58B-43-00420 DOOR, CONTACTOR BOX 1
? GE1772 GASKET (1) 2
? GE1774 GASKET 2
? NOTE: (1) USE VJ2672 CEMENT TO INSTALL THE GASKET.

Dump Trucks Komatsu / AFE NEW / AFE73-X 980E-4 S/N A40178 - A40180  BUENAVISTA(afe73-x) / CONTROL CABINET - DOORS & COVERS    1/2(722 : 64320)
?
?
?
?
?
?
?
?
?
?
?
?
?
?
?
?
?
?
?
?
?
?