k-part.com
Вход
Komatsu Parts Catalogs
Корень
Dump Trucks Komatsu
AFE NEW
AFE73-X 980E-4 S/N A40178 - A40180 BUENAVISTA(afe73-x)
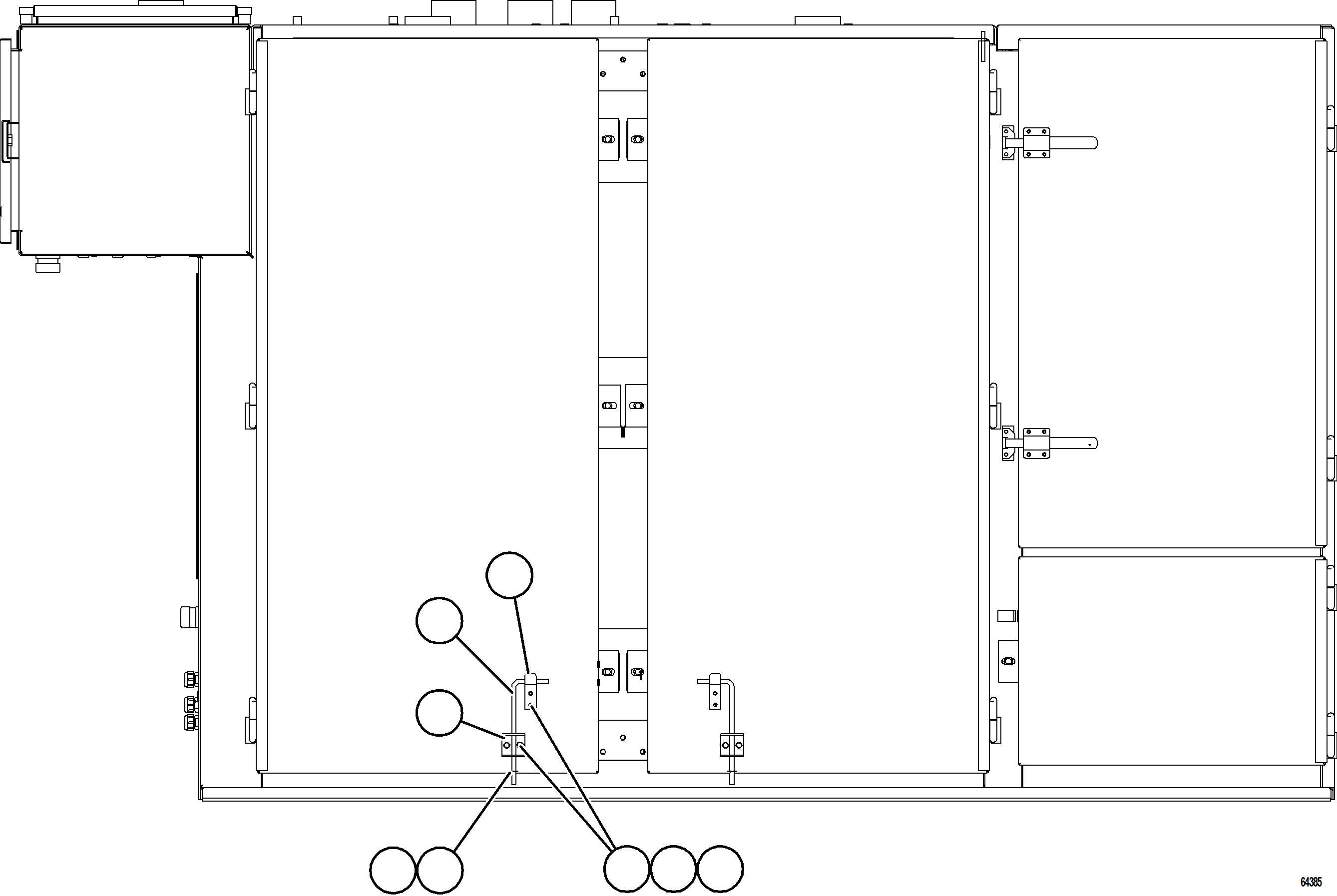
CONTROL CABINET - DOOR STOPS 58B-43-00001(720 : 64385)
Item
PartNo
Description
Qty
Options
Ref
Alt
?
XA5306
BRACKET, DOOR
2
?
XA5305
ROD, DOOR STOP
2
?
XA5307
BRACKET, DOOR
2
?
XA5283
PIN, COTTER
2
?
VE4516
WASHER
2
?
XA5287
CAPSCREW - 1/4" - 20NC X 7/8"
4
?
DC3584
LOCKWASHER - 1/4"
4
?
SP8417
FLAT WASHER - 1/4"
4
?
?
?
?
?
?
?
?