Title | Page | Reference |
---|---|---|
RELAY - CPR & GFR VG7043 | 732 | 43675 |
Item | PartNo | Description | Qty | Options | Ref | Alt | |
---|---|---|---|---|---|---|---|
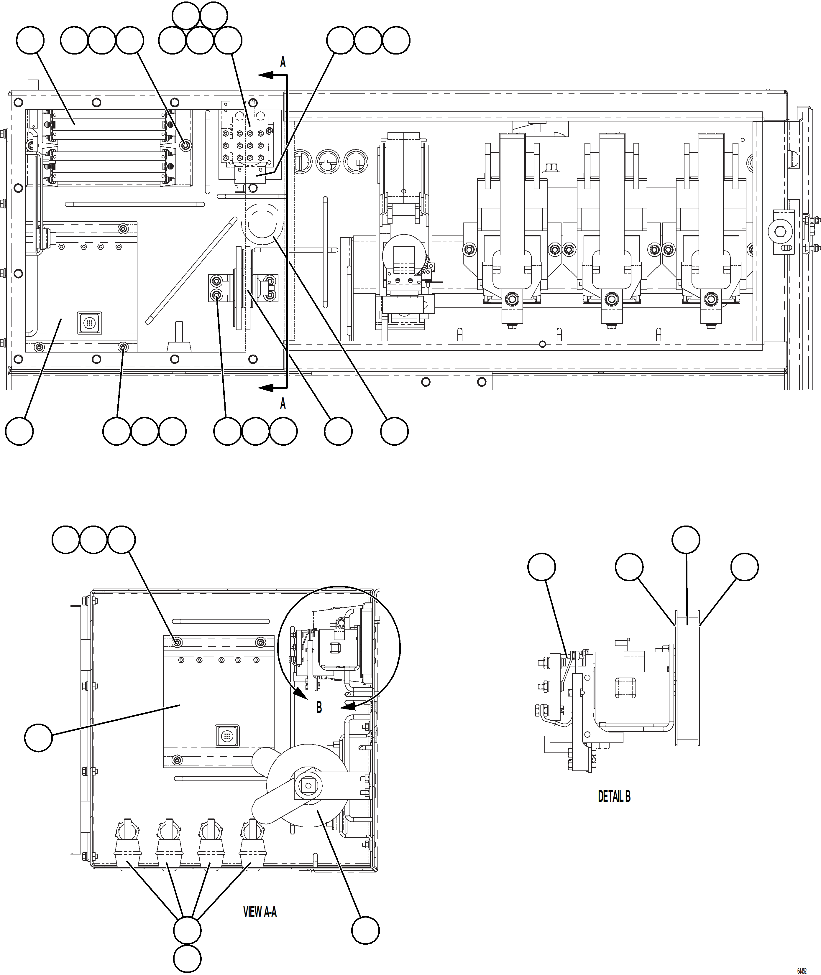
? | GE0860 | RESISTOR ASSEMBLY | 1 | ||||
? | VJ9059 | • RESISTOR | 2 | ||||
? | PB2685 | • CONTACT CLIP ASSEMBLY | 2 | ||||
? | VE5013 | NUT - 5/16" - 18NC | 6 | ||||
? | VE4696 | LOCKWASHER - 5/16" | 6 | ||||
? | VE4343 | FLAT WASHER - 5/16" | 6 | ||||
? | GE0148 | PANEL ASSEMBLY (VAM) | 2 | ||||
? | VE4902 | NUT - 1/4" - 20NC | 12 | ||||
? | XA5003 | LOCKWASHER - 1/4" | 12 | ||||
? | 58D-98-02180 | FLAT WASHER - 1/4" | 8 | ||||
? | PB5230 | RESISTOR, THYRITE | 1 | ||||
? | 58B-43-00260 | GROMMET | 1 | ||||
? | XA5274 | CAPSCREW - 1/4" - 20NC X 1 1/4" | 2 | ||||
? | VE7202 | WASHER - 1/4" (SPECIAL) | 2 | ||||
? | VG7043 | RELAY - CPR & GFR (SEE INDEX) | 1 | 43675 | |||
? | BF4452 | MODULE, SUPPRESSION | 1 | ||||
? | VJ6457 | SHIELD | 1 | ||||
? | VJ6455 | BASE | 1 | ||||
? | VJ6456 | SHIELD | 1 | ||||
? | PB3348 | INSULATOR | 4 | ||||
? | XA3143 | STUD | 4 |