Komatsu Parts Catalogs












Item PartNo Description Qty Options Ref Alt
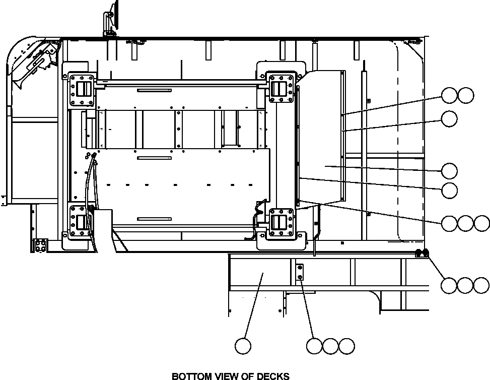
? MM0047 LOCKWASHER - M10 4
? MM0704 FLAT WASHER - M10 (HARDENED) 12
? EJ6527 BAR 1
? EJ6526 COVER 1
? EH7975 BAR 1
? MM0050 CAPSCREW - M10 X 1.50 X 25 4
? MM0178 NUT - M10 X 1.50 4
? MM0075 CAPSCREW - M20 X 2.50 X 60 4
? MM0697 LOCKNUT - M20 X 2.50 4
? EC7594 FLAT WASHER - M20 (HARDENED) 8
? EC1826 DECK, REAR CENTER - L.H. 1

Dump Trucks Komatsu / AFE47-DH 730E S/N A30375             ALCOA(AFE47-DH) / L.H. REAR CENTER DECK INSTL. & MISC.(016 : 55714)
?
?
?
?
?
?
?
?
?
?
?
?
?
?
?