Komatsu Parts Catalogs








































Item PartNo Description Qty Options Ref Alt
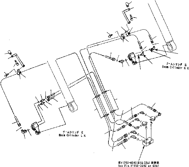
? 4210931120 ELBOW 1
SN: K45000-
? 0700212434 O RING 1
SN: K45000-
? 0289611015 O RING 1
SN: K45000-
? 0276200517 HOSE 1
SN: K45000-
? 2079775120 BRACKET 1
SN: K45000-
? 6131223750 BOSS 1
SN: K45000-
? 0102481045 BOLT SEMS 1
SN: K45000-
? 0443453212 CLIP 1
SN: K45000-
? 0709520523 CUSHION 1
SN: K45000-
? 0102481225 BOLT SEMS 1
SN: K45000-
? 11Y6212510 ELBOW 1
SN: K45000-
? 0700211423 O RING 1
SN: K45000-
? 0289611009 O RING 1
SN: K45000-
? 0276200313 HOSE 1
SN: K45000-
? 11Y6212510 ELBOW 1
SN: K45000-
? 0700211423 O RING 1
SN: K45000-
? 0289611009 O RING 1
SN: K45000-
? 0277700312 HOSE 1
SN: K45000-
? 0278310522 ELBOW 1
SN: K45000-
? 0700212434 O RING 1
SN: K45000-
? 0289611015 O RING 1
SN: K45000-
? 0276200510 HOSE 1
SN: K45000-
? 0278210311 ELBOW 1
SN: K45000-
? 0700211423 O RING 1
SN: K45000-
? 0289611009 O RING 1
SN: K45000-
? 0276200318 HOSE 1
SN: K45000-
? 0278210312 ELBOW 1
SN: K45000-
? 0700211423 O RING 1
SN: K45000-
? 0289611009 O RING 1
SN: K45000-
? 0277700318 HOSE 1
SN: K45000-
? 2079775120 BRACKET 1
SN: K45000-
? 6131223750 BOSS 1
SN: K45000-
? 0102481045 BOLT SEMS 1
SN: K45000-
? 0443451912 CLIP 1
SN: K45000-
? 0709520213 CUSHION 1
SN: K45000-
? 0443452512 CLIP 1
SN: K45000-
? 0709520318 CUSHION 1
SN: K45000-
? 0102481225 BOLT SEMS 1
SN: K45000-
? 0803420519 BAND 4
SN: K45000-

Excavators Komatsu / PC340LC/NLC-7 E0 2 PIECE BOOM  S/N K45000-UP(pc3402p0) / 2PB BOOM CYL B/V PIPING(370000 : 370000)
?
?
?
?
?
?
?
?
?
?
?
?
?
?
?
?
?
?
?
?
?
?
?
?
?
?
?
?
?
?
?
?
?
?
?
?
?
?
?
?
?
?
?
?
?
?